This townhouse renovation project in Brooklyn, NY is for a young couple with a need to secure their financial future, and, start a family. With this in mind, SimpleTwig suggested creating two rental apartments in addition to their Owner occupied unit. This would allow them to maximize extra income into their savings, giving them the option of combining units in the future when their family expanded.

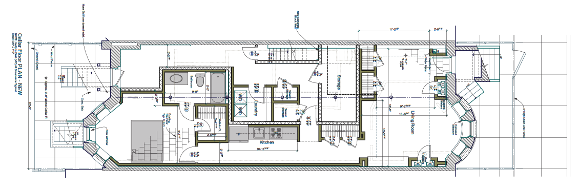
Starting with the basement rental unit, there was a need to provide access to the mechanical room for the owner while maximizing the square footage of the apartment. This was accomplished by having the owner enter from the back yard, thus providing the tenant with their own private entrance at the front, and an expanded living room. While the apartment is long and narrow, the master bedroom offers a bathroom and extra room in the bay window. Further, there was the desire to offer these tenants access to laundry facilities, shared with the Owner, to maximize rental income. The goal as always, is to make the rentals as nice as possible, to attract those who want to live in a nice place, and thus ensure that they are maintained. It’s essentially an alignment of attitudes that helps keep the apartment in good shape.

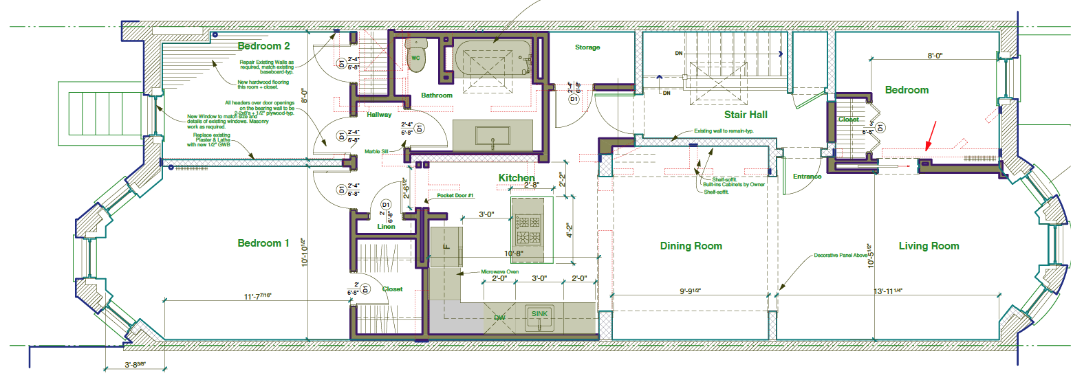
On the main ‘Parlor’ floor, which would be the Owner’s ‘starter unit’, the need was for two bedrooms, and larger bathroom, and an open kitchen, dining and living room, all complimented with extra closet space to the extent possible.
We provided them with their own entrance vestibule connected to a coat closet, to welcome them home from a long day at work. This allows them to easily access either the kitchen or living room. The hallway connecting the bedrooms is carefully separated from the kitchen, as no one wants bedroom doors opening into a kitchen which is the second worst thing one can do followed by a bathroom door opening up into the kitchen. So as one can see, we provided a tiny hallway that connects both bedrooms, the bathroom and the kitchen, minimizing it’s size so that the square footage could be used for closets, linen, etc.

In order to maximize rental income, we designed a legal 3 bedroom apartment for the 2nd floor. This would allow the Owners to charge additional money over a more common 2 bedroom. The unit has a Master Bedroom with a walk-in closet, and two smaller bedrooms for children. Note how this allows the Owners to move into this apartment if they have 2 children in the future, either renting out the lower floors or living here while the lower floors are combined into a duplex.
Again the hallway is minimized, the closets are maximized and the layout includes an open floor plan layout to ensure there is plenty of light, air and space to live comfortably.
If you’re wondering about noise, the joists of each unit are coated in expandable foam insulation to deaden the noise of those above.
The skill of being an architect isn’t about saying ‘we need a bedroom, a kitchen, a bathroom…’. It’s about meeting needs, for today and for the future. For accommodating things that most people forget, to carving out space in a way that enhances other spaces. To doing the maximum possible within a given budget. Doing so while understanding structure, mechanical, plumbing, venting, storm drains and sud zones. It’s all part of the process and as a highly trained and experienced Architect it is something I have done every day of my life.
Regards, Nick Buccalo
Principal of SimpleTwig Architecture.llc
24 years in Brooklyn and looking forward to the next 24 years!

